Property Type
House
Parking
2 parking
MLS #
R3062097
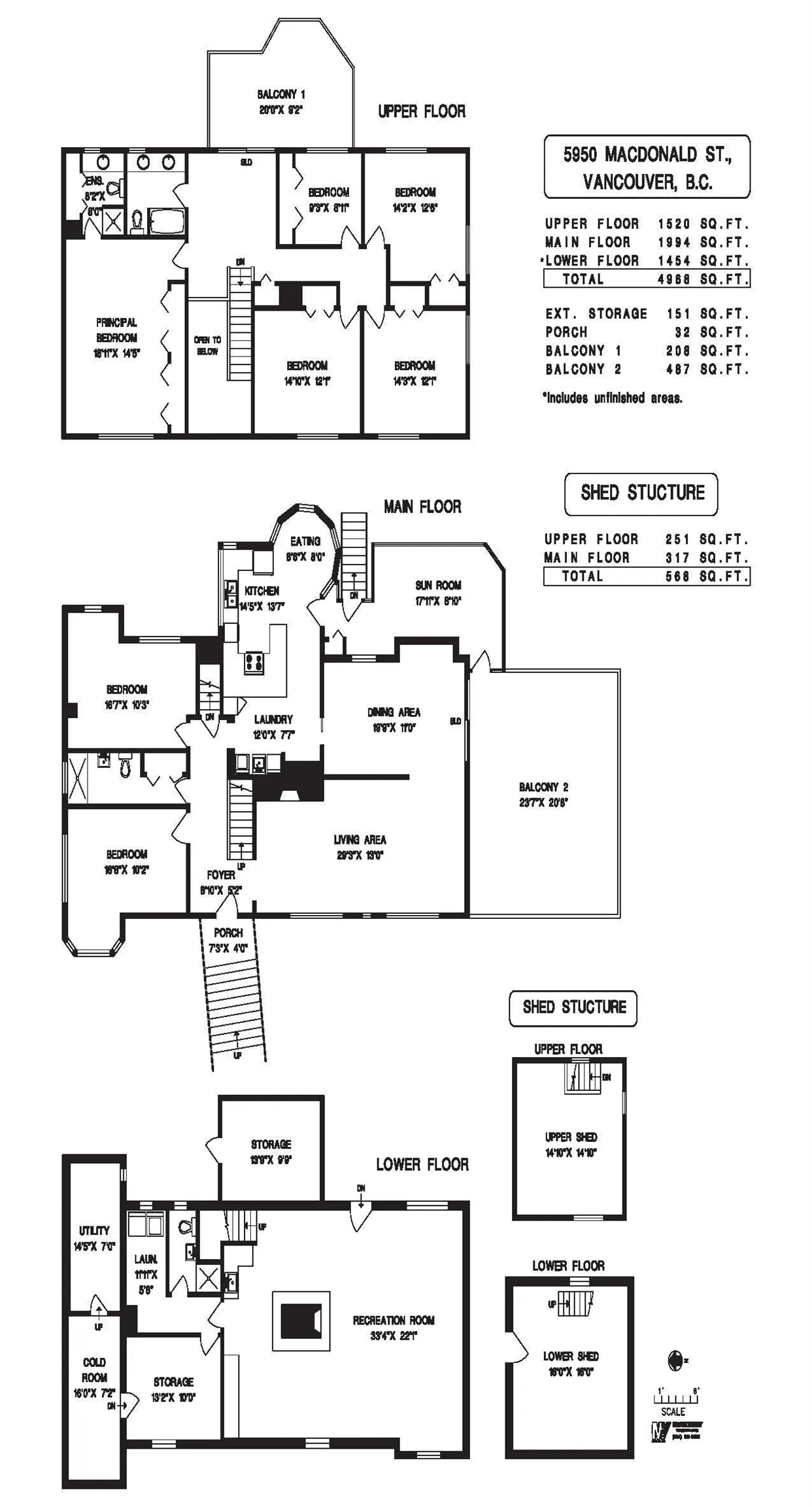
Size
4968 sqft
Basement
Finished
Listed on
-
Lot size
16023.00 sqft
Tax
$24,396.70 /yr
Days on Market
-
Year Built
1927
Maintenance Fee
-
