Property Type
House
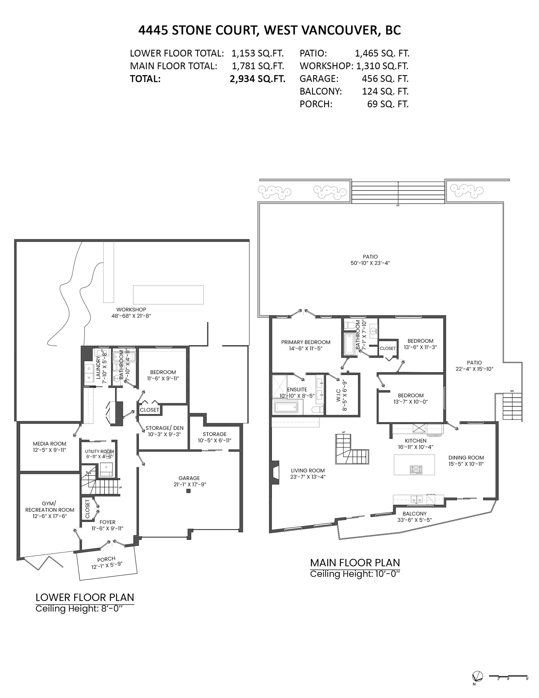
Parking
2 garage, 6 parking
MLS #
R3062210
Size
2934 sqft
Basement
None
Listed on
-
Lot size
14822.00 sqft
Tax
$6,780.82 /yr
Days on Market
-
Year Built
1978
Maintenance Fee
-
